Е. Р. Глобус, Ю. П. Бутров, Л. И. Нестерова,
Ю. Н. Сорокина, С. Я. Андрюшин, П. Е. Хакуашев
Государственное унитарное предприятие “Научно-производственное объединение “Орион”,
Москва, Россия
Разработано неохлаждаемое двухканальное фотоприемное устройство с кремниевым фотодиодом и пленочным фоторезистором из сульфида свинца. Фотодиодный канал снабжен усилителем 744УД1А-1 и обладает порогом чувствительности не выше 1,5·10-10 Вт/Гц-1/2 по источнику А (Т = 2850°С). Удельный порог ФР не превышает 1,3·10-9 Вт/см/Гц1/2 по черному телу с температурой 300°С. ФПУ характеризуется высокой точностью соосности фотодиода, фоторезистора и иммерсионной линзы относительно посадочного диаметра устройства.
Разработка настоящего фотоприемного устройства (ФПУ) была вызвана необходимостью модернизации оптико-электронных устройств специального назначения, выпускавшихся в 70- 80 гг. Эти устройства оснащались одним фоторезистором (ФР) на основе поликристаллического сульфида свинца и в настоящее время не удовлетворяют пользователя по порогу чувствительности и помехозащищенности. В целях улучшения этих характеристик было предложено ввести в устройство два канала, один из которых работал бы в видимом диапазоне, а другой - в ближнем инфракрасном. При этом было необходимо без применения охлаждения резко повысить чувствительность по основному каналу и сохранить ее уровень во вспомогательном, уменьшив его инерционность.
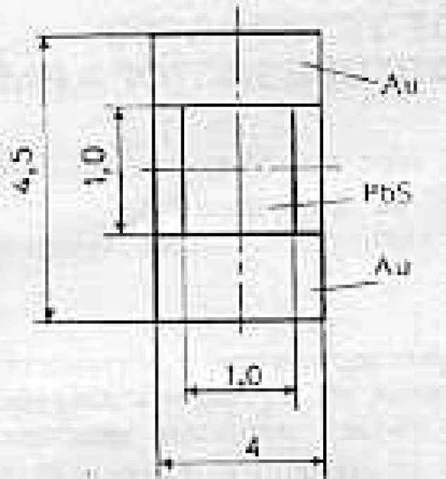
Для выполнения этих требований было решено использовать в основном канале кремниевый фотодиод (ФД), а во вспомогательном - фоторезистор на основе химически осажденных слоев PbS. Кроме того, решили изготавливать фоточувствительный блок в виде склейки иммерсионной линзы, ФД и ФР (рис. 1), а для уменьшения наводок на канал ФД - включить его на операционный усилитель с отрицательной обратой связью, расположенный в том же корпусе, что и фоточувствительный блок. Размеры ФД и ФР указаны на рис. 2 и 3. Электрическая схема ФПУ приводится на рис. 4. В качестве операционного усилителя была выбрана обладающая достаточо низкими шумами микросхема 744УД1А-1. Требования малого уровня шума и малых размеров к резистору обратной связи заставили провести сравнение резисторов разных типов и выбрать оптимальный (“Арктика” R1-12-0.062), а для емкости в цепи обратной связи использовать конденсатор К10-42-М47.

Рис. 1. Фоточувствительный блок

Рис. 2. Фотодиод

Рис. 2. Фотодиод

Рис. 4. Электрическая схема ФПУ
Анализ параметров фоточувствительных слоев PbS, изготовленных по существующим технологиям, показал, что ни одна из них не удовлетворяет предъявляемым требованиям. Поэтому был отработан новый режим химического осаждения, обеспечивающий необходимый уровень обнаружительной способности при малой инерционности фотоответа. Для ограничения левой границы спектральной характеристики чувствительности ФР на обратную сторону фотодиода наносится интерференционный фильтр, который в области чувствительности ФР играет роль просветляющего покрытия на кремнии, что приводит к дополнительному росту чувствительности.
Сборка фоточувствительного блока производится под микроскопом в следующем порядке. Сначала склеиваются ФР и ФД и центрируются относительно друг друга так, чтобы расстояние между центрами их чувствительных площадок не превышало 50 мкм. Затем на ФД наклеивается линза таким образом, чтобы уход центра ее основания от центра внутреннего кольца ФД не превышал 50 мкм. Для склейки блока используются полиуретановые компаунды УК-1 и УК-1М.
Конструкция ФПУ показана на рис. 5. Так как ФПУ должно устанавливаться в герметичный отсек устройства, то сборка ФПУ проводится только клеевыми соединениями. В титановый цоколь монтируется монтажная плата с заранее впаянными в ее контактные отверствия многожильными гироскопными проводами (ПМГ). Пространство между монтажной платой и цоколем залито вместе с проводами эпоксидным компаундом. Такая конструкция цоколя позволяет неоднократно использовать его при необходимости замены фоточувствительного блока. На монтажную плату приклеиваются фоточувствительный блок, операционный усилитель, резистор обратной связи и конденсатор. Во время приклейки фоточувствительного блока эпоксидной смолой производится его юстировка с целью минимизации биений оптической оси линзы относительно оси посадочного хвостовика диаметров 2,3 мм по специально отработанной методике. Относительные биения этих осей не должны превышать 30 мкм.
На заключительном этапе изготовления ФПУ производятся разварка микросборки золотой проволокой и приклейка крышки.

Рис. 5. Неохлаждаемое ФПУ ДР-93:
1 - монтажная плата;
2 - крышка;
3 - цоколь;
4 - проводящие дорожки;
5 - конденсатор;
6 - резистор;
7 - ФД;
8 - ФР;
9 - микросхема 744УД1А-1;
10 - выводы
Основные фотоэлектрические параметры ФПУ
| Канал ФД: | |
|---|---|
| вольтовая чувствительность, В/лм | > 1000 |
| порог чувствительности, лм/Гц1/2 | < 1,5·10-10 |
| Канал ФР: | |
| вольтовая чувствительность, В/Вт | > 2000 |
| удельный порог чувствительности, Вт/см/Гц1/2 | < 1,3·10-9 |
| постоянная времени фотоответа (Т = -20°С), мкс | < 400 |
| сопротивление, мОм | 0,1 - 1,0 |
Условия определения параметров
| Частота модуляции, Гц | 1200 |
|---|---|
| Температура полости черного тела (для ФР), °С (К) | 300 (573) |
| Сопротивление нагрузки (для ФР), кОм | 150 |
| Цветовая температура лампы накаливания (источник А), °С | 2850 |
В разработке ФПУ ДР-93 принимал участие большой коллектив
предприятия, поэтому авторы статьи считают своим долгом отметить
неоценимый вклад, внесенный в эту работу к. т. н. Л. Н. Залевской,
к. т. н. М. А. Антиповой, д. т. н. Е. А. Красовским, Т. И. Борисовой, Л. Я. Лебедевой,
а также безвременно ушедшим от нас к. т. н. А. А. Гольденвейзером,
Ю. В. Уваровым, В. А. Елесиным.
THE TWO-CHANNEL PHOTODETECTOR DEVICE ON THE BASIS
OF THE SILICON DIODE AND PHOTORESISTOR PbS
S. Y. Andrushin, Y. P. Butrov, E. R. Globus,
L. I. Nesterova, Y. N. Sorokina, P. E. Hakuashev
The State Unitary Enterprise “RD&P Centre “Orion”, Moscow, Russia
The uncoold two-channel photodetector device (PDD) with the silicon photodiode and lead sulfid film photoresistor is developed. The photodiod channel is supplied by amplifier 744УД1А-1 and has NEP above 1,5·10-10 W/Hz1/2 for a source A (T = 2850°C). NEP* of fotoresistor does not exceed 1,3·10-9 W/sm/Hz1/2 for black body with temperature 300°C. PDD is characterized by high accuracy of the arrangement of the photodiode, photoresistor and immersion lens of the rather landing diameter of the device.